


남해 SOC 꿈나눔센터
Nam-hae Municipal Youth & Community Hall
분류 남해군설계공모입선(5등)
위치 경남 남해군 남해읍 북변리 339
용도 수련시설, 운동시설, 제1종 근린생활시설, 노유자시설
면적 대지 10,018㎡ 건축 4,133.6 ㎡
합계 4,750㎡
규모 지상 5층
주차 69대 (장애인 8대)
구조 SRC + 트러스구조
재료 알루미늄커튼월, U 글라스
협업 인시추, 가람건축
참여 이민기, 권재원, 박현진
--
TYP Competition 5th Place
Location Nam-hae, Korea
Use Sports Complex + Community Hall
GFA 4,750 ㎡
Collaborator In-Situ, Garam Architects
Team Lee Min Ki, Kwon Jae Won, Park Hyun Jin
Nam-hae Municipal Youth & Community Hall
분류 남해군설계공모입선(5등)
위치 경남 남해군 남해읍 북변리 339
용도 수련시설, 운동시설, 제1종 근린생활시설, 노유자시설
면적 대지 10,018㎡ 건축 4,133.6 ㎡
합계 4,750㎡
규모 지상 5층
주차 69대 (장애인 8대)
구조 SRC + 트러스구조
재료 알루미늄커튼월, U 글라스
협업 인시추, 가람건축
참여 이민기, 권재원, 박현진
--
TYP Competition 5th Place
Location Nam-hae, Korea
Use Sports Complex + Community Hall
GFA 4,750 ㎡
Collaborator In-Situ, Garam Architects
Team Lee Min Ki, Kwon Jae Won, Park Hyun Jin
남해 꿈나눔 센터는 마을의 커뮤니티를 통합하고 새로운 수요에 유연하게 대응하는 지역밀착형 하이브리드(Vernacular Hybrid)로 계획하고자 했다.
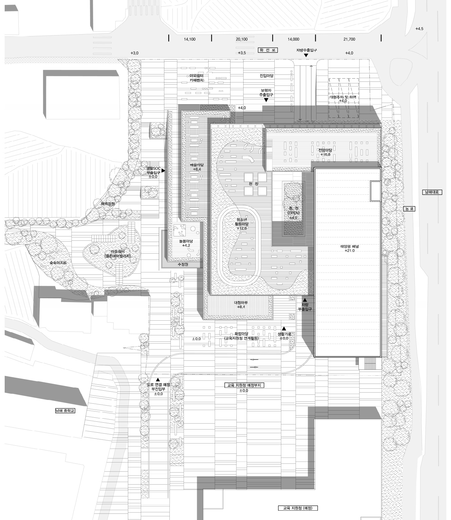
남해읍의 동쪽 끝자락에 위치한 대상지는 북측으로 화전로, 남측으로 교육지원청예정지를 접하고 있다. 자연스럽게 주요 보행진입과 차량진입이 화전로의 진입마당(Entry Plaza)을 따라 일어나며 남측은 교육지원청과 연계하여 사용할수 있는 화합마당(Shared Plaza)으로 계획된다. 남북의 레벨차를 중재하는 보행광장(West Promenade)이 서측 대지경계를 따라 흘러 진입마당-생활SOC-공유마당-교육지원청을 하나의 클러스터로 묶어준다.
마을과 남해대로의 스케일에 대응하며 건축의 볼륨은 서쪽에서 동쪽을 향해 점층되며 마을을 향해 열린 테라스형 옥상마당(Terraced Rooftop)을 형성한다. 인접 프로그램의 테마로 꾸며지는 이 마당들은 지상의 보행광장과 함께 확장하는 외부공간과 입체적인 조경의 네트워크가 된다.
남해읍의 동쪽 끝자락에 위치한 대상지는 북측으로 화전로, 남측으로 교육지원청예정지를 접하고 있다. 자연스럽게 주요 보행진입과 차량진입이 화전로의 진입마당(Entry Plaza)을 따라 일어나며 남측은 교육지원청과 연계하여 사용할수 있는 화합마당(Shared Plaza)으로 계획된다. 남북의 레벨차를 중재하는 보행광장(West Promenade)이 서측 대지경계를 따라 흘러 진입마당-생활SOC-공유마당-교육지원청을 하나의 클러스터로 묶어준다.
마을과 남해대로의 스케일에 대응하며 건축의 볼륨은 서쪽에서 동쪽을 향해 점층되며 마을을 향해 열린 테라스형 옥상마당(Terraced Rooftop)을 형성한다. 인접 프로그램의 테마로 꾸며지는 이 마당들은 지상의 보행광장과 함께 확장하는 외부공간과 입체적인 조경의 네트워크가 된다.

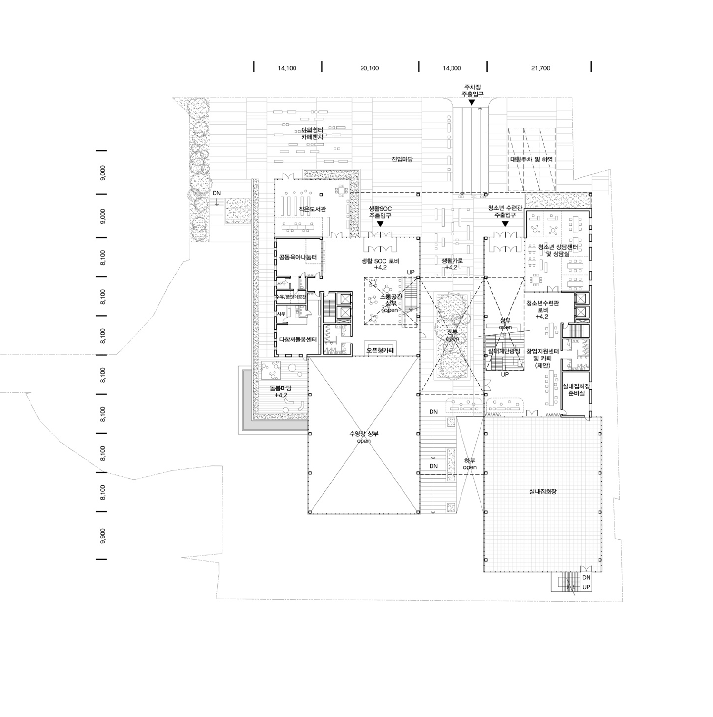
남북을 한번 더 이어주며 대지의 중앙을 관통하는 중심생활가로(Central Promenade)는 주민시설과 청소년시설의 영역을 분리해주는 동시에 세대통합을 위한 생활 이벤트의 장이 된다. 주민시설과 청소년시설은 각각의 공용공간과 출입동선을 가지며 층별로 조닝이 되어 사용자편의와 관리효율을 극대화한다.
생활SOC는 활동성이 높고 면적규모가 큰 체육시설과 주차를 저층부에 배치하고 가족중심의 소규모 프로그램들이 소통공간(Community Hall)을 중심으로 클러스터를 이루며 주진입 레벨(2층)과 3층에 위치하도록 했다.
생활SOC는 활동성이 높고 면적규모가 큰 체육시설과 주차를 저층부에 배치하고 가족중심의 소규모 프로그램들이 소통공간(Community Hall)을 중심으로 클러스터를 이루며 주진입 레벨(2층)과 3층에 위치하도록 했다.

청소년수련관은 실내계단광장(Cascading Plaza)을 중심으로 남측에 집회장과 실내체육관이, 북측에 상담센터, 미디어센터, 자치활동장이 연속성을 가지고 배치될수 있도록 하였다.
대지를 따라 길게 펼쳐진 계단식 볼륨은 외기 노출 면적을 높여 채광과 환기에 유리하며 동선분리에도 효과적이다. 집단활동이 일어나는 대형 프로그램들은 출입동선을 분리할 수 있도록 하여 범죄예방 및 방역관리(Crime Prevention/Post COVIC-19)가 용이하게 이루어지도록 하였으며, 미디어센터나 다목적공간 같은 큰 규모의 내부 공간을 세분하여 불필요한 대면접촉을 최소화했다.
텍스트 장유진 + 이경재
대지를 따라 길게 펼쳐진 계단식 볼륨은 외기 노출 면적을 높여 채광과 환기에 유리하며 동선분리에도 효과적이다. 집단활동이 일어나는 대형 프로그램들은 출입동선을 분리할 수 있도록 하여 범죄예방 및 방역관리(Crime Prevention/Post COVIC-19)가 용이하게 이루어지도록 하였으며, 미디어센터나 다목적공간 같은 큰 규모의 내부 공간을 세분하여 불필요한 대면접촉을 최소화했다.
텍스트 장유진 + 이경재







(description on the way)