













송도국제도시도서관
Songdo International City Library분류 송도시국제설계공모제안작
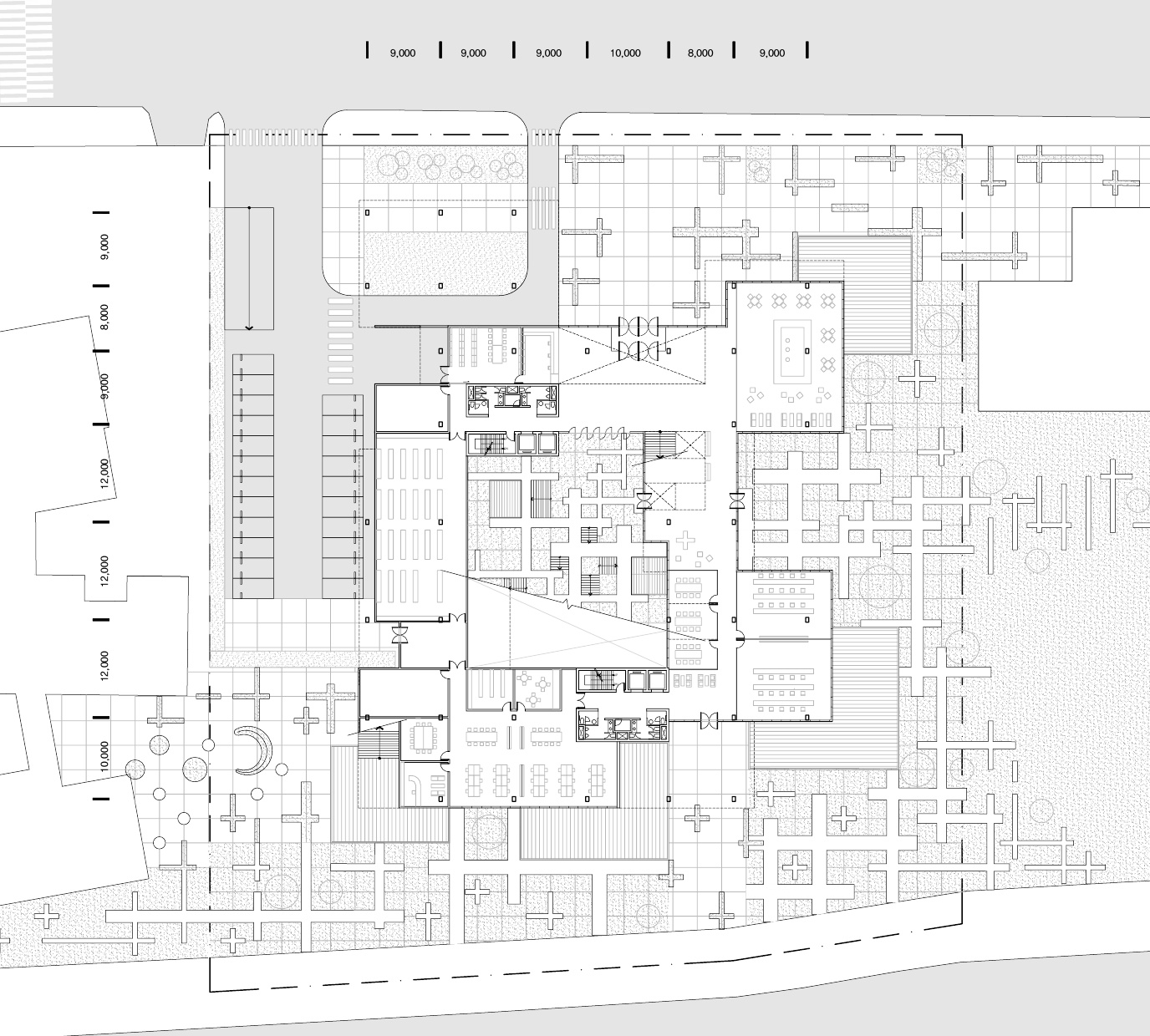
위치 인천광역시 연수구 송도동 115-2
용도 복합문화시설
면적 대지 9,427.4㎡ / 건축 2,842.0 / 합계 7,997.6㎡
규모 지상 3층
구조 RC + SC
재료 커튼월시스템, 메탈스크린
협업 조진만아키텍츠
참여 이민기, 한미옥, 박래은, 이아영, 장동혁, 김예원, 김영채
--
TYP Competition Entry
Location Song-do, Korea
Use Library + Community Hall
GFA 7,997.6㎡
Collaborator Jo Jinman Architects
Team Lee Min Ki, Han Mi Ok
1 - 깊이 읽기와 느슨한 단절의 공간
송도 국제도시 도서관은 공간체험과 책읽기가 씨줄/날줄처럼 엮인 공간이다. 크로스워드퍼즐처럼 짜여진 삼차원의 서가는 책을 찾아가는 즐거움을 선사하고, 서가에 몸을 숨겨 자발적 고립이 가능하다. 서원 같은 편안한 공간구조와 불규칙적인 서가 시스템이 만들어내는 느슨한 단절은 마을 도서관에 재미와 깊이를 더한다.
Crossing : International City Library of Song-do
Song-do International City Library, a readers’ haven attempts to invite readers back to the library by providing memorable reading experiences. Co-Reading as we put it, is a layered experience occurring along the entire process of reading. Series of modular expansion transitioning scales from furniture to spaces encourages readers to fully engage stimulating reading activity, while feeling the sense of connectivity in an inspiringly communal environment. In order to achieve this seemingly impossible goal, we applied a simple yet daring operation at each step of modular expansion. The result is a self growing system that locally replicates the sequence of domestic environments and collectively renders the un-repeating structure of a city.


2 - 작은 방과 흐린 경계의 도서관
깊이 읽기를 위한 열람공간은 일상의 공간인 ‘집’의 구조를 닮는다. 열람홀-스터디-개별열람공간 구성이 마당-거실-방의 위계와 크기를 모사해, 집을 나와 도서관에 왔는데 다시 집으로 들어가 책을 읽는듯한 아늑한 공간경험을 구현한다. 열람공간은 실제 집과 달리 흐린 경계로 분절된다. 높이와 위치, 용도의 서가들이 가구가 되고 벽이 되고 개구부도 되면서 반투과성 경계들을 만들고 방들은 나뉘면서 연결된 스펀지 같은 조직을 이룬다.
Small Rooms and Implicit Thresholds | Co-nnected Reading
We already know the coolest place to read books: home, period. Only downfall of home reading would be that we get bored from time to time. The reading module system scales from individual cells to a large information hall that replicate the scale and sequence of domestic spaces: bedroom, study, living room, courtyard, etc. Unlike real homes, the reading modules consist of walls made of book shelves and cutouts enabling just the right amount of solitude for serious readers. As a result, the system brings back the intimacy and connection of ‘at home reading experience’ while maximizing the benefit of spontaneous social interaction.
깊이 읽기를 위한 열람공간은 일상의 공간인 ‘집’의 구조를 닮는다. 열람홀-스터디-개별열람공간 구성이 마당-거실-방의 위계와 크기를 모사해, 집을 나와 도서관에 왔는데 다시 집으로 들어가 책을 읽는듯한 아늑한 공간경험을 구현한다. 열람공간은 실제 집과 달리 흐린 경계로 분절된다. 높이와 위치, 용도의 서가들이 가구가 되고 벽이 되고 개구부도 되면서 반투과성 경계들을 만들고 방들은 나뉘면서 연결된 스펀지 같은 조직을 이룬다.
Small Rooms and Implicit Thresholds | Co-nnected Reading
We already know the coolest place to read books: home, period. Only downfall of home reading would be that we get bored from time to time. The reading module system scales from individual cells to a large information hall that replicate the scale and sequence of domestic spaces: bedroom, study, living room, courtyard, etc. Unlike real homes, the reading modules consist of walls made of book shelves and cutouts enabling just the right amount of solitude for serious readers. As a result, the system brings back the intimacy and connection of ‘at home reading experience’ while maximizing the benefit of spontaneous social interaction.

3 - 경로 감각
디지털 화면의 균질성은 공간감과 시간성을 소거하여 인쇄물 읽기에 비해 사건 간 상관 관계와 순서 파악이 어렵다는 연구가 있다. 같은 맥락에서 일반 도서관의 반복적인 서가 조직은 책을 찾아가고 읽는 경험 역시 단순해질 수 밖에 없다. 우리가 제안하는 서가는 스케일의 변주와 공간 위계를 가지면서 입체적으로 구성되며 컨텐츠(책)와 맞물리면서 복합적인 공간지각 경험을 선사한다. 책을 찾고 발견하고 읽는 과정에서 자극되는 오감의 경로는 의미있는 기억으로 재구성된다.
Shelving Tectonics | Co-gnitive Reading
Reading, specifically the entire process of physical reading activity, whether through digital devices or printed media, engages highly social behavior far beyond our senses. It involves trips, hunching & squatting, pulling in & out, standing, sitting, leaning and sometimes even lying down. Also involving interpersonal behavior such as inquiring, chatting, talking, discussing and observing, reading room requires way more than just repeating book shelves. Defined by height, breadth and uses, the project employs a variety of book shelving tectonics in order to induce maximum corporal movement as well as diverse interpersonal communication.
디지털 화면의 균질성은 공간감과 시간성을 소거하여 인쇄물 읽기에 비해 사건 간 상관 관계와 순서 파악이 어렵다는 연구가 있다. 같은 맥락에서 일반 도서관의 반복적인 서가 조직은 책을 찾아가고 읽는 경험 역시 단순해질 수 밖에 없다. 우리가 제안하는 서가는 스케일의 변주와 공간 위계를 가지면서 입체적으로 구성되며 컨텐츠(책)와 맞물리면서 복합적인 공간지각 경험을 선사한다. 책을 찾고 발견하고 읽는 과정에서 자극되는 오감의 경로는 의미있는 기억으로 재구성된다.
Shelving Tectonics | Co-gnitive Reading
Reading, specifically the entire process of physical reading activity, whether through digital devices or printed media, engages highly social behavior far beyond our senses. It involves trips, hunching & squatting, pulling in & out, standing, sitting, leaning and sometimes even lying down. Also involving interpersonal behavior such as inquiring, chatting, talking, discussing and observing, reading room requires way more than just repeating book shelves. Defined by height, breadth and uses, the project employs a variety of book shelving tectonics in order to induce maximum corporal movement as well as diverse interpersonal communication.




4 - 몸으로 기억하는 마음의 집
일제곱센티의 뇌 세포 안에 우리 은하의 별만큼이나 많은 연결이 존재한다고 한다. 뇌세포 안 신경망 만큼이나 많은 보이지 않는 끈에 연결되어 살아가는 사회적 존재가 또 인간이다. 송도 국제도시 도서관은 책읽기라는 보편적인 문화유산과 온몸으로 지각하는 열람공간 경험을 매개로 사람과 사람을 이어주고 마을과 마을을 묶어주는 마음의 집이 되고자 한다.
Territorial Monument | Communal Reading
Monument, by its one of many literal meanings, an outstanding, enduring, and memorable example of something. A lasting community needs a monument to stick around, and we came up with a monument that is a series of domains as opposed to a single manifestative object. The project carefully puts together the reading module arrangements in an unprecedented combination to generate never-repeating environments. Furthermore, the reading rooms collectively feature all sorts of shelving tectonic: staggering, shifting, alternating, platforming, cascading, cracking, walling, gating and enclosing. Mutually exclusive and collectively exhaustive modular combinations are expected to generate highly engaging moments, a real-time territorial monument.
텍스트 - 이경재
Written by Lee, Kyeong Jae
일제곱센티의 뇌 세포 안에 우리 은하의 별만큼이나 많은 연결이 존재한다고 한다. 뇌세포 안 신경망 만큼이나 많은 보이지 않는 끈에 연결되어 살아가는 사회적 존재가 또 인간이다. 송도 국제도시 도서관은 책읽기라는 보편적인 문화유산과 온몸으로 지각하는 열람공간 경험을 매개로 사람과 사람을 이어주고 마을과 마을을 묶어주는 마음의 집이 되고자 한다.
Territorial Monument | Communal Reading
Monument, by its one of many literal meanings, an outstanding, enduring, and memorable example of something. A lasting community needs a monument to stick around, and we came up with a monument that is a series of domains as opposed to a single manifestative object. The project carefully puts together the reading module arrangements in an unprecedented combination to generate never-repeating environments. Furthermore, the reading rooms collectively feature all sorts of shelving tectonic: staggering, shifting, alternating, platforming, cascading, cracking, walling, gating and enclosing. Mutually exclusive and collectively exhaustive modular combinations are expected to generate highly engaging moments, a real-time territorial monument.
텍스트 - 이경재
Written by Lee, Kyeong Jae